Property ID : 3255712
SOLD $769,900 SOLD - Past Sales
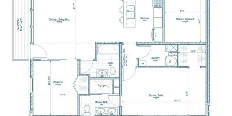
Introducing 24 new residential loft style condos at 410 First! Located in downtown Ann Arbor steps from The Kerrytown District. Enjoy 10 ft. ceilings, private outdoor space and parking included. These modern urbane new spaces will include floor-to-ceiling windows and bike storage. Standard finishes include hardwood floors, granite counter tops and stainless steel appliances. Includes 2 parking spaces. Drive by the site today!































